| Date | Client | Location |
|---|---|---|
| October 2020 | Major North Sea Operator | Central North Sea |
Scope
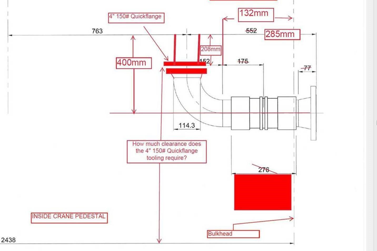
Quickflange™ technology was identified to repair a leaking 4” Sch80 carbon steel nozzle feeding from a diesel tank. Hot work was not an option due to both time constraints and the extreme space restrictions with the nozzle being located in a void which was too small for a welding habitat.
Solution
ICR’s standard installation equipment was mobilised, which was able to contend with the tight clearance, limited rigging options and space restrictions – having only limited clearance to the nearest I-beam obstruction. The technician mobilised was ‘confined space entry’ trained in order to complete the install in a safe manner. All items were mobilised within 48hours, minimising the client’s downtime. The Quickflange™ joint was also tested post installation, to ensure the integrity of the connection and that it conformed to industry and client standard.
Results & Benefits
- No hot work
- Extreme space restrictions were met with no issues, something no other competitor could match
- Equipment mobilised 48hours from initial request
- Reduced cost due to minimal downtime





Featured articles
LR and UKAS boost for ICR Group’s INSONO innovation
ICR Group shortlisted for Business of the Year